Focus |Family Room
Breakfast Room
Kitchen
Screened Porch
Master Suite
Breakfast Room
Kitchen
Screened Porch
Master Suite
Winning Combination
Committed team effort among owner, architect and builder
garnered a first place prize for Sympathetic Addition
in the Great American Home Awards from
The National Trust for Historic Preservation
and Old House Journal

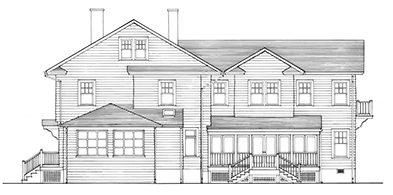
The location of the house was near perfect: on a tree lined street across from a pretty park with pond, just minutes away from the center of a camera-ready commuter town. On the other hand, the house itself was not nearly as perfect: short on space and in dire need of a kitchen facelift, it made up for spatial and practical shortcomings with its photogenic Craftsman Colonial details and a good-sized lot ready for an addition.
By chance, the requirements for breakfast and family rooms on the first floor with a master suite on the second fit together snugly in a wing that I expanded out from and built up on a shallow bay that already jutted out from the back of the original house.
I filled the crook of the newly-formed L-shaped footprint with a screened porch serving both original dining room and new breakfast room.
While the floor plans essentially designed themselves, this was not the case for the interior and exterior elevations: it took concerted effort on my part to achieve apparent effortlessness on their parts. Seamless melding of interiors and exteriors ultimately rendered a picture perfect pairing of great house with great location.
As a postscript, the judges of the Great American Home Awards recognized the efforts of the entire building team when it awarded the project first place for Sympathetic Addition, making this a winning project all around.




























